The photos you provided may be used to improve Bing image processing services.
Privacy Policy
|
Terms of Use
Can't use this link. Check that your link starts with 'http://' or 'https://' to try again.
Unable to process this search. Please try a different image or keywords.
Try Visual Search
Search, identify objects and text, translate, or solve problems using an image
Drag one or more images here,
upload an image
or
open camera
Drop images here to start your search
To use Visual Search, enable the camera in this browser
All
Search
Images
Inspiration
Create
Collections
Videos
Maps
News
More
Shopping
Flights
Travel
Notebook
Top suggestions for Box Dimension Math Problem
Math
Puzzle Box
Box
Method Math
Diamond
Math Problems
Solve
Math Problems
Solving Math
Word Problems
Ratio
Box
Math Problem
Solving Steps
Fun
Math Problems
Box
Table Math
Quadratic Box
Method
Box
Method Multiplication
Kids
Math Problems
Function Table Rule
Worksheet
Boxed
Math
Long Division
Box Method
Math Box
Project
Box
Strategy Math
Box
Plot Problems
Box
Method Examples
Mathematics
Box
2nd Grade
Math Addition
Algebra 2
Math Problems
Visual
Math Problems
Trick
Math Problems
Problem
Solving Template Word
Impossible
Math Problems
Cubes Math
Strategy
Practice Math Problems
9th Grade Box Method
Box Clever
Math Problem
Diamond and Box
Method Factoring
Percentage Box
Method
Think
Box Math Problems
Factoring Using
Box Method
Box
Method Factoring Trinomials
Box in a Box
Base in Math
Math
Puzzle Worksheets
Multiplicatin Box
Method
Box Diagram
Math Problem
Multiplication Box
Method Worksheet Free
Step by Step
Math Problem
The Box Method Math Problems
for Grade 4
Four Box Math Problem
Method
Beginning Algebra
Problems
Obects in a
Box Math Problem
Math
Multiplication Lattice
2-Digit Multiplication
Box Method Worksheet
Maths
Learning Wall
Box
Nets Maths
Area Model Multiplication
Worksheets
Common Core
Math Problems
Explore more searches like Box Dimension Math Problem
Workbook Answer
Key
Grade
6
Breeze
Prime
Must
Remember
Facts
About
Grade
7
7th
Grade
Grade
1
People interested in Box Dimension Math Problem also searched for
10th
Grade
Algebra
1
College
Algebra
Middle
School
Key
Words
Algebra
Calculator
Walk
Around
4th
Grade
Elementary
School
Algebra
2
2nd
Grade
Albert
Einstein
Second
Grade
Printable
Worksheets
Print for
Free
Simple
Algebra
Google
Free
Easy
Quick
1st
Grade
8th
Grade
Free
Online
Two-Step
Fraction
Word
Trick
7
Grade
Good
11th
Grade
Logic
Division
PEMDAS
College
Level
Complex
6
Grade
8
Grade
5th
Grade
Autoplay all GIFs
Change autoplay and other image settings here
Autoplay all GIFs
Flip the switch to turn them on
Autoplay GIFs
Image size
All
Small
Medium
Large
Extra large
At least... *
Customized Width
x
Customized Height
px
Please enter a number for Width and Height
Color
All
Color only
Black & white
Type
All
Photograph
Clipart
Line drawing
Animated GIF
Transparent
Layout
All
Square
Wide
Tall
People
All
Just faces
Head & shoulders
Date
All
Past 24 hours
Past week
Past month
Past year
License
All
All Creative Commons
Public domain
Free to share and use
Free to share and use commercially
Free to modify, share, and use
Free to modify, share, and use commercially
Learn more
Clear filters
SafeSearch:
Moderate
Strict
Moderate (default)
Off
Filter
Math
Puzzle Box
Box
Method Math
Diamond
Math Problems
Solve
Math Problems
Solving Math
Word Problems
Ratio
Box
Math Problem
Solving Steps
Fun
Math Problems
Box
Table Math
Quadratic Box
Method
Box
Method Multiplication
Kids
Math Problems
Function Table Rule
Worksheet
Boxed
Math
Long Division
Box Method
Math Box
Project
Box
Strategy Math
Box
Plot Problems
Box
Method Examples
Mathematics
Box
2nd Grade
Math Addition
Algebra 2
Math Problems
Visual
Math Problems
Trick
Math Problems
Problem
Solving Template Word
Impossible
Math Problems
Cubes Math
Strategy
Practice Math Problems
9th Grade Box Method
Box Clever
Math Problem
Diamond and Box
Method Factoring
Percentage Box
Method
Think
Box Math Problems
Factoring Using
Box Method
Box
Method Factoring Trinomials
Box in a Box
Base in Math
Math
Puzzle Worksheets
Multiplicatin Box
Method
Box Diagram
Math Problem
Multiplication Box
Method Worksheet Free
Step by Step
Math Problem
The Box Method Math Problems
for Grade 4
Four Box Math Problem
Method
Beginning Algebra
Problems
Obects in a
Box Math Problem
Math
Multiplication Lattice
2-Digit Multiplication
Box Method Worksheet
Maths
Learning Wall
Box
Nets Maths
Area Model Multiplication
Worksheets
Common Core
Math Problems
550×273
University of Washington
a box folding problem (with animation!)
1600×900
forourschool.org
Box Models for Division | Math Guide
850×283
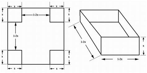
researchgate.net
Schematic diagram of box dimension method. | Download Scientific Diagram
320×320
researchgate.net
Schematic diagram of box dimension method. | Downlo…
Related Products
Math Problem Box Set
Geometry Workbook Set
Calculus Textbook Bundle
759×670
sploshjnr.home.blog
Theory: Why is the Box Dimension the Box Dimension? – Splosh Jn…
850×1522
researchgate.net
Two steps of box dimension calc…
1600×1411
1001mathproblems.com
1001 Math Problems: August 2015
447×261
Weebly
Open Box Problem - Frieda Chen's Teaching Portfolio
1280×720
ar.inspiredpencil.com
Dimension Math
524×171
Lamar University
Calculus I - Optimization (Practice Problems)
Explore more searches like
Box
Dimension Math
Problem
Workbook Answer Key
Grade 6
Breeze Prime
Must Remember
Facts About
Grade 7
7th Grade
Grade 1
1634×1080
chegg.com
Solved Problem 3: Find the dimensions of the open | Cheg…
1500×1600
storage.googleapis.com
Boxed Dimension at Bruce Lohr blog
250×187
education.ti.com
The Classic Box Problem - Calculus
442×270
www2.math.upenn.edu
Problem of the Day
1200×630
1001mathproblems.com
1001 Math Problems: The Box Problem
1128×1344
1001mathproblems.com
1001 Math Problems: The Box Problem
1956×1368
ar.inspiredpencil.com
Box Dimension
1290×1190
ar.inspiredpencil.com
Box Dimension
1080×1080
ar.inspiredpencil.com
Box Dimension
212×127
udge.org
box – Volume and Area of a Box – Computer Science b…
862×459
chegg.com
Solved (20 points) A d-dimensional box with dimensions | Chegg.com
712×600
chegg.com
Solved 11. Box Problem: You are making a designer box wit…
643×415
chegg.com
Solved Box problem revisited. The volume of an open box | Chegg.com
903×1024
chegg.com
Solved Open-box Problem. An open-bo…
874×1060
chegg.com
Solved Open-box Problem. An open-b…
960×540
helpingwithmath.com
Multiplication Question & Answers For 5th Grade | Common Core
2027×1031
Stack Exchange
geometry - How to go about solving this question? - Mathematics Stack ...
People interested in
Box Dimension
Math Problem
also searched for
10th Grade
Algebra 1
College Algebra
Middle School
Key Words
Algebra Calculator
Walk Around
4th Grade
Elementary School
Algebra 2
2nd Grade
Albert Einstein
1077×744
chegg.com
Solved Problem Statement A box with dimensions shown has an | Chegg.com
1600×900
boxchoices.blogspot.com
Box Dimensions Calculator - Box Choices
940×1070
chegg.com
Solved Instructions The box problem. You hav…
640×480
classcentral.com
Free Video: The Box Problem: Optimizing Volume in Rectangular C…
921×511
chegg.com
Solved Set up and evaluate the optimization problem.You are | Chegg.com
888×250
chegg.com
Solved Problem \# 5: The length, width, and height of a box | Chegg.com
647×148
chegg.com
Solved Problem #2: The length, width, and height of a box | Chegg.com
1777×347
chegg.com
Solved Problem # 2: The length, width, and height of a box | Chegg.com
Some results have been hidden because they may be inaccessible to you.
Show inaccessible results
Report an inappropriate content
Please select one of the options below.
Not Relevant
Offensive
Adult
Child Sexual Abuse
Feedback